Precíziós lineáris vezetések, golyósorsók, modulok és hajtás kiegészítő elemek. A termékek közvetlenül a webshopban is elérhetők, egyedi megoldásokért szakmai tanácsokért keresd termék támogató mérnökeinket.
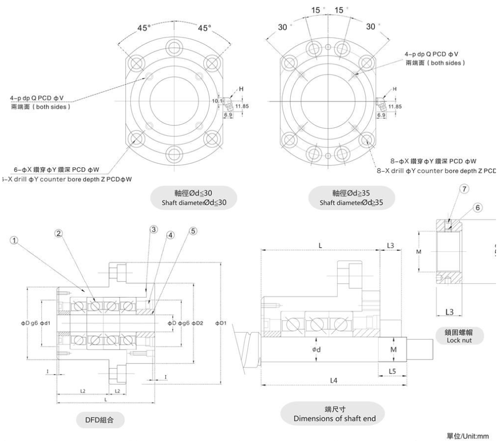
| Típus | Dimenziók (mm) | Cdyn (kN) | N/µm | Nm | M | D3 | L3 | Nm | kg | ||||||||||||||||
|---|---|---|---|---|---|---|---|---|---|---|---|---|---|---|---|---|---|---|---|---|---|---|---|---|---|
| øD | Dg6 | øD1 | øD2 | L | L1 | L2 | X | Y | Z | ød1 | I | V | PCD øW | Q | Axiális dinamikus terhelhetőség | Max. megengedett tengelyterhelés | Előterhelés | Axiális merevség | Kezdő nyomaték | Biztosító anya furat | Biztosító anya külső átmérő | Biztosító anya hossz | Biztosító anya szorító nyomaték | Teljes tömeg | |
| WBK15DF | 15 | 70 | 106 | 72 | 60 | 32 | 15 | 9 | 14 | 8.5 | 45 | 3 | 58 | M5 | 10 | 21.9 | 26.6 | 2.15 | 750 | 0.19 | M15 × 1 | 30 | 14 | 52 | 1.9 |
| WBK17DF | 17 | 70 | 106 | 72 | 60 | 32 | 15 | 9 | 14 | 8.5 | 45 | 3 | 58 | M5 | 10 | 21.9 | 26.6 | 2.15 | 750 | 0.19 | M17 × 1 | 32 | 16 | 74 | 1.9 |
| WBK20DF | 20 | 70 | 106 | 72 | 60 | 32 | 15 | 9 | 14 | 8.5 | 45 | 3 | 58 | M5 | 10 | 21.9 | 26.6 | 2.15 | 750 | 0.19 | M20 × 1 | 38 | 16 | 118 | 1.9 |
| WBK25DF | 25 | 85 | 130 | 90 | 66 | 33 | 18 | 11 | 17.5 | 11 | 57 | 4 | 70 | M6 | 12 | 28.5 | 40.5 | 3.15 | 1.000 | 0.29 | M25 × 1.5 | 38 | 18 | 87 | 3.1 |
| WBK30DF | 30 | 85 | 130 | 90 | 66 | 33 | 18 | 11 | 17.5 | 11 | 57 | 4 | 70 | M6 | 12 | 29.2 | 43 | 3.35 | 1.030 | 0.3 | M30 × 1.5 | 45 | 18 | 260 | 3 |
| WBK35DF | 35 | 95 | 142 | 102 | 66 | 33 | 18 | 11 | 17.5 | 11 | 69 | 4 | 80 | M6 | 12 | 31 | 50 | 3.8 | 1.180 | 0.34 | M35 × 1.5 | 52 | 18 | 340 | 3.4 |
| WBK35DF | 40 | 95 | 142 | 102 | 66 | 33 | 18 | 11 | 17.5 | 11 | 69 | 4 | 80 | M6 | 12 | 31.5 | 52 | 3.9 | 1.230 | 0.36 | M40 × 1.5 | 58 | 20 | 500 | 3.6 |
Komplex lineáris megoldásokat kínálunk a tervezéstől az egyedi gyártáson át egészen a gépsorok felújításáig
– mindezt szakértő mérnöki támogatással és gyors, precíz kivitelezéssel.